P03185 CASTELLON
- En venta
- 95.000 €
- - Piso
- Dormitorios: 2
- Baños: 1
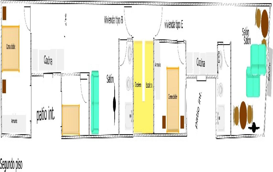
ESTUDIO EN VENTA ZONA CENTRO CASTELLON
Viviendas de 1 y 2 dormitorios, rehabilitadas en zona centro de castellon, Memoria de calidades. Pavimento del suelo con material porcelánico (azulejos).. Cocina y baños revestidos con material cerámico.. Instalación eléctrica adaptada a la normativa actual.. Instalación de fontanería realizada con tubería multicapa.. Agua caliente con calentador eléctrico.. Cocina de 250 cm de longitud, y hueco para lavadora y frigorífico.. Instalación de un split por vivienda en el salón.. Ventanas con doble acristalamiento (tipo Climalit o similar).. Puerta de entrada a la vivienda blindada, en color madera o similar.. Puertas interiores macizas en blanco o similar.
- Mapa
